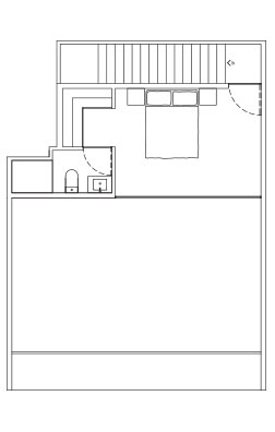
3 recámaras Triplex +/ 142 m² (+ 42 m²)
3 recámaras en tres pisos. Con roof garden y terraza de doble altura.
-
1Acceso
-
2Cocina
-
3Lavado
-
4Sala - Comedor
-
5Recámara
-
6Baño
-
7Terraza doble altura techada
-
8Roof Garden






