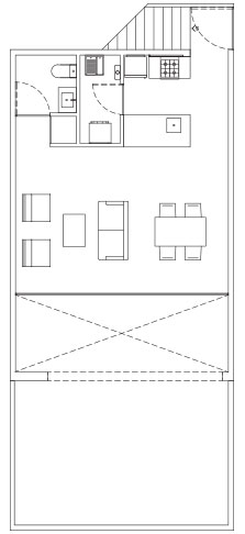
2 recámaras duplex +/ 112 m² (+ 24 m²)
2 recámaras en dos pisos con patio y terraza de doble altura cubierta.
-
1Acceso
-
2Cocina
-
3Lavado
-
4Sala - Comedor
-
5Recámara
-
6Baño
-
7Terraza doble altura techada
-
8Patio





