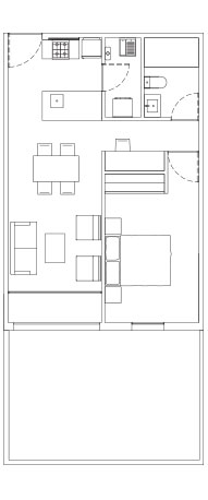
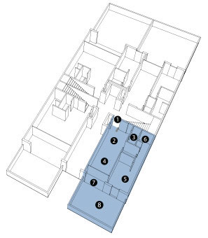
1 Recámara Simplex + / 55 m² (+ 22 m²)
Una recámara en un piso con terraza techada y patio.
-
1Acceso
-
2Cocina
-
3Lavado
-
4Sala - Comedor
-
5Recámara
-
6Baño
-
7Terraza Cubierta
-
8Patio




