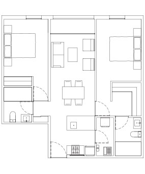
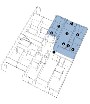
2 recámaras simplex / 78 m²
2 recámaras en un piso con balcón.
-
1Acceso
-
2Cocina
-
3Lavado
-
4Sala - Comedor
-
5Recámara
-
6Baño
-
7Balcón techado




