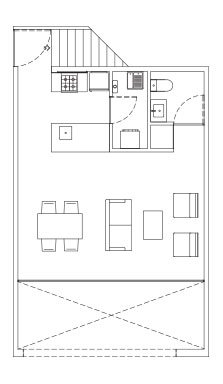
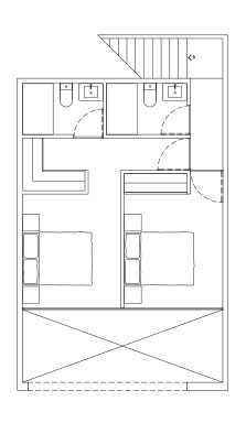
2 recámaras duplex / 112 m²
2 recámaras en dos pisos con terraza de doble altura cubierta.
-
1Acceso
-
2Cocina
-
3Lavado
-
4Sala - Comedor
-
5Recámara
-
6Baño
-
7Terraza doble altura techada





