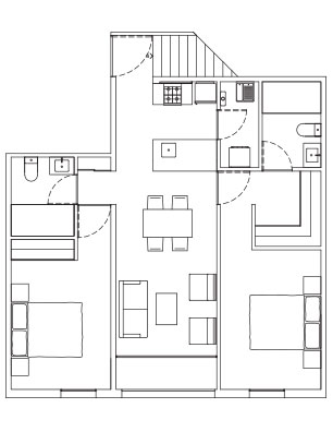
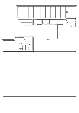
3 recámaras Duplex +/ 106 m² (+ 42 m²)
3 recámaras en dos pisos. Con roof garden y balcón.
-
1Acceso
-
2Cocina
-
3Lavado
-
4Sala - Comedor
-
5Recámara
-
6Baño
-
7Balcón Techado
-
8Roof Garden





